咨詢電話
18678018808臨朐久昇機電設備有限公司
地址:山東省濰坊市臨朐縣冶泉路2255號
聯系人:白經理
手機: 18678018808
傳真: 0536-3351116
郵箱: lqjiusheng@163.com
聯系我們
▌產品介紹
LB鏈板定量給料機,就上LB鏈板定量給料機的專用鋼襯板環帶是對高溫散狀物料和濕度較大的物料進行連續給料的理想設備。其技術先進、穩定可靠、性價比高、經久耐用,尤其適用高溫環境,廣泛應用于建材、冶金、電力、化工等行業的高溫工藝環節。
▌性能特點
1、具有良好的耐高溫特性,最高耐溫可達300℃
2、對定量給料機膠帶具有良好的保護作用,能有效防止硬物劃傷
3、對濕度大的物料具有良好的拖動作用
4、將其安裝于定量給料機上時,既具有膠帶運轉時的高平穩性和高計量精度,又具有鏈板帶的高耐溫性和高可靠性


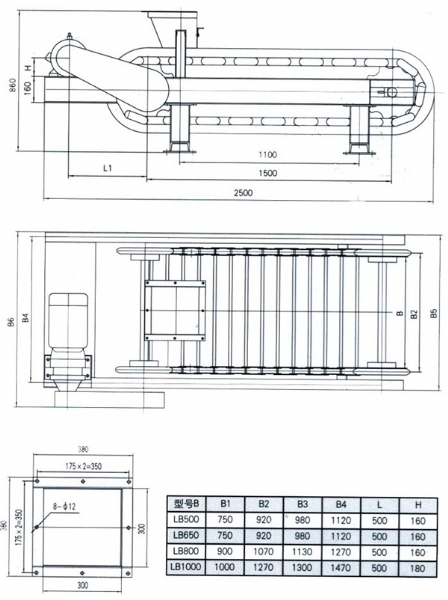
▌技術參數
規格型號 | 長度(mm) | 寬度(mm) | 厚度(mm) |
LB05 | 500 | 96 | 2.5~4 |
LB06 | 650 | 96 | 2.5~4 |
LB08 | 800 | 96 | 2.5~4 |
LB10 | 1000 | 96 | 2.5~4 |
LB12 | 1200 | 96 | 2.5~4 |
LB14 | 1400 | 96 | 2.5~4 |
LB18 | 1800 | 96 | 2.5~4 |